こんにちは。設計センターの久木﨑です。
半年ぶりとなりました。
今回は設計・プランナー業務を少しご紹介致します。
昨年から設計センターに異動になり毎日悪戦苦闘、そして毎日が勉強です!
営業や工務、オペレーターの方には毎日迷惑ばかりを掛けてしまい本当に申し訳ないです。。
さて、
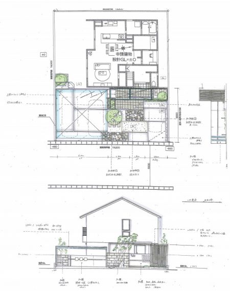
エクステリアやお庭を計画する時、まずは一枚の紙と向き合います。
物件ごとの「敷地状況」や「ニーズ」「予算」に応じて計画がスタートして参ります。
【平面図】


紙ベースだと、どうしても平面的な印象となってしまいます。
プランをする上でとても重要になってくるのは『高さ』です。
室内とは違い、雨が降る外部空間ではどんなところでも水を逃がす為に勾配を設定します。
また、「目隠しフェンスを立てたい」や「階段が何段必要か」など考慮すべき点は様々です。

「意匠性」の面でも、高さは必須です。
通常、人の視線は下にはいきません。つまり、立体的に立っているデザインウォールや植栽に目がいきます。
実際にお庭に立ってみたり、室内からお庭を眺めてみて魅力的であるかはその気配りにあるかもしれません。
また、ZEH対策等でシンプルな建物が多くなる中、エクステリアデザインがますます重要になってきます。
他にも
「植栽」の使い方

植栽はコスト的には比較的安価で、暮らしに季節感をもたらします。
緑陰による微気候効果もありより快適な空間を創ることができます。
(あまりコストをかけずに、魅力的なお庭にしたい)そんなご要望にはまさに植栽です!
植栽が1本でもあるお庭とないお庭では全く異なります。ぜひ!おススメです!
「軒をつける」

この軒も大きなポイントです。
例えば、(お庭に出てBBQがしたい)と思った時に天候に左右される事も多いはずです。
日差しも強く、外にずっと居るのは大変。
そこで軒をつけてあげて下を固め、そこにベンチでも付けてあげれば、憩い・くつろぎの場所へ変貌致します。
これもお庭の定番の形です。
デザイン性だけでは無くそのお庭が仕上がった時、実際にどの様に使うのだろう、どの様に楽しむのだろ、
お客様に長く大切に使って頂く為には必要不可欠な部分となります。
また、カーポートもそのひとつです。
雨の日、玄関からお車までの動線、小さなお子様をチャイルドシートへ乗せる時、
自転車から降りてカッパを脱いでから玄関からの動線。
もし軒が無ければ、せっかくカッパを着て濡れずにご自宅まで到着しても
カッパを脱ぐときに雨で濡れてしまいます。
そのようなひとつひとつの気遣いが積み重なってひとつのプランが仕上がります。
宮崎に帰宅するとその道中
今まで担当させて頂きましたお客様のご自宅を拝見しながら様々なことを思い出します。


一緒に掃除をした事やBBQに誘って頂いた事、保育園にお子様を送り届けたこともありましたね(笑)
全体のエクステリア工事から、金物単体工事や植栽工事。
そしてガーデン工事も。




本当に多くの現場を担当させて頂きました。
このような素敵な経験が出来るのも、お客様をはじめ、
職人さん、先輩方、みなさまのおかげです。
重ね重ねありがとうございました。